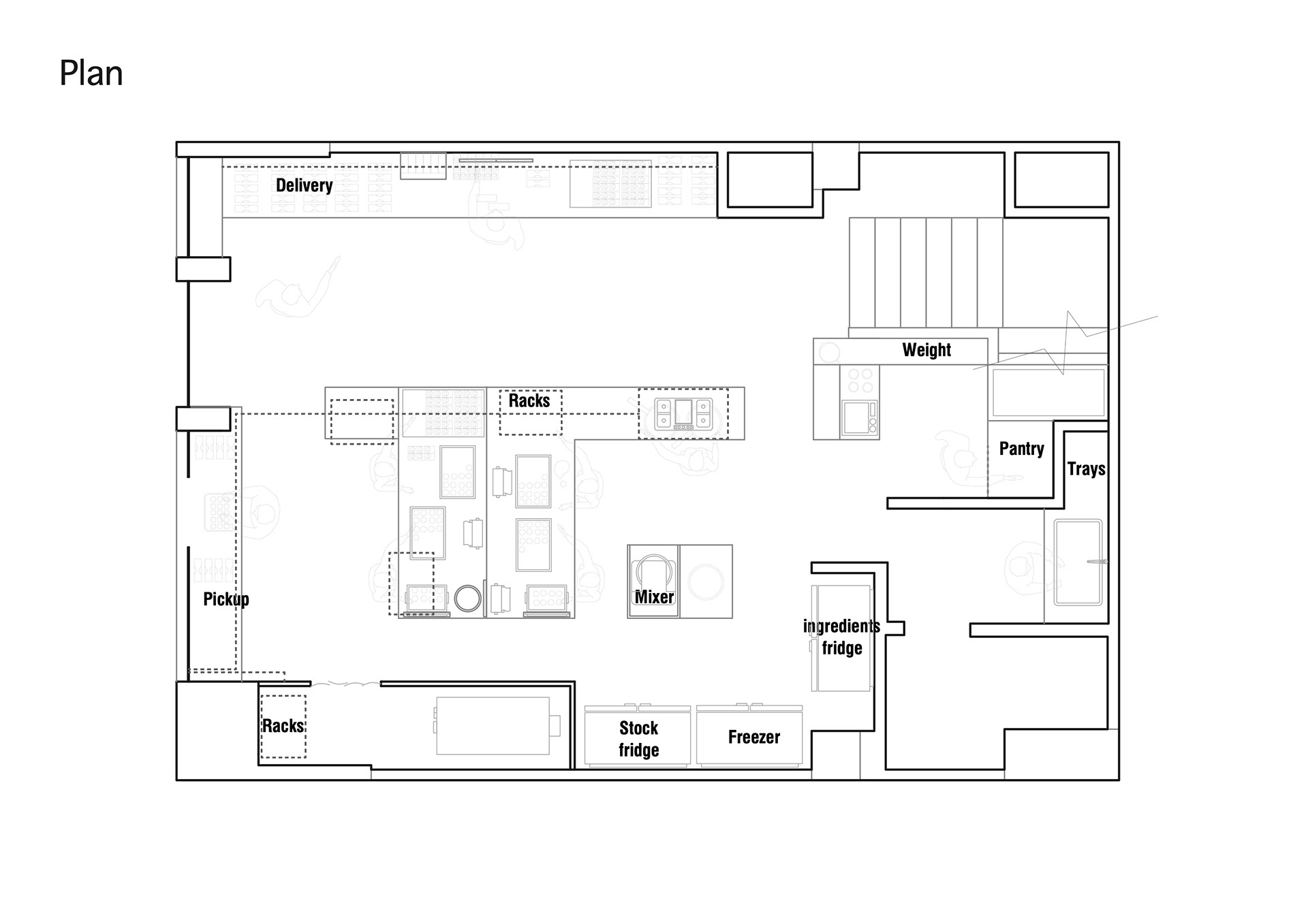
COOKIEVORE FACTORY
You may also like
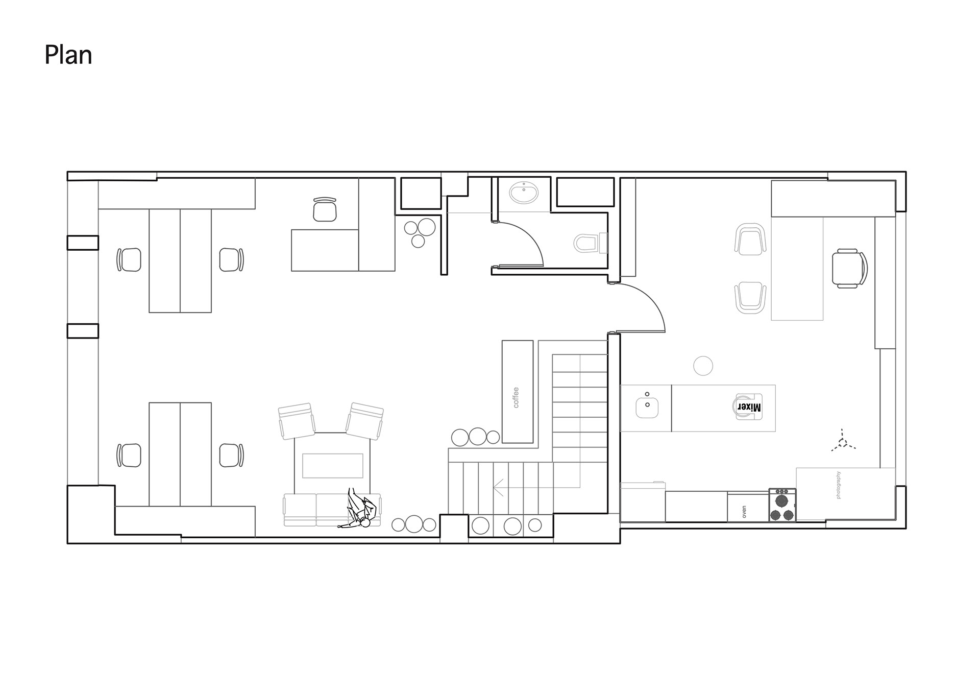
DT- OFFICE
2023
WILLNESS APP ADV DECORATION
2023
PUBLICISTS SPACE
2023
HYDEPARK TWINHOUSE
2023
DT-STOP MOTION SPACE
2023
BOHO OFFICE/BEDROOM
2023
ROOFTOPS
2023
ORABY EVENT SPACE
2023
X HOUSE
2023
HATTABA DESIGN GUIDLINE
2023
↑
Back to Top